Полезная площадь проекта "Зерфаус" - 224 кв.м. По проекту "Зерфаус" - двухэтажное здание, которое также оснащено крыльцом и террасой. Площадь крыльца составляет - 7,57 кв.м., площадь террасы - 18,07 кв.м.
Также, в доме есть большая гостиная, совмещенная с кухней-столовой.
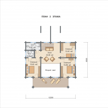
По проекту в здании есть 3 спальни на втором этаже + 1 спальня на первом этаже, которые можно переоборудовать под другие любые необходимые помещения.
Также дом оборудован тремя санузлами.








